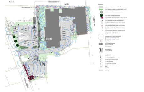
Paide State building
Address: Tallinn Street 18, Paide City, Järvamaa
Area: 6 000 m²
Year: 2021
Status: Under construction
Client: Riigi Kinnisvara Aktsiaselts
Architecture: KOKO architects
Landscape architecture: KOKO architects and Pihamaa Studio
Visualization: KOKO architects
The goal was to unite the existing buildings (a historical heritage courthouse and a building from Soviet-era) into the Paide State building. The landscape architecture aimed to present the outdoor space of the Paide State Building as representative and even ceremonially festive, in a way that the buildings from different eras appear unified. To achieve this, a staircase was designed, with ramps adding grandeur and massiveness, creating a perceptual sense that one is entering the space of a prestigious government institution. The plant beds near the entrances were designed to emphasize festivity, ensuring blooming throughout the season. A challenge was finding suitable plants to prevent erosion in areas with steep slopes near the stairs and ramps. As much as possible, existing vegetation was preserved, the parking area was divided into smaller sections with trees and greenery.
A detailed landscape design was created.



